Andreas Kyranis architects revisit a 1930s residence in Paleo Psychiko with a contemporary vocabulary, initiating a dialogue that shapes both the unique identity of the listed building and the design ethos of the new architectural ensemble.
Paleo Psychiko is a garden city that was developed through private urban planning from 1923 onwards, based on the designs of architect Alexandros Nikoloudis. It emerged in what was once a wild and sparsely inhabited agricultural and pastoral area, located about five kilometers northeast of old Athens. By the late 1930s, a cluster of modest, anonymous 19th-century stone rural houses had been joined together and transformed into what is today a listed ground-floor building, reflecting a then-contemporary architectural identity. Its architecture bears a strong resemblance to that of the nearby Municipal Market, designed shortly before by Sotiris Magiasis.
Since the Western Renaissance, modernity has often concealed its structural core behind a carefully crafted, self-sufficient external skin. This autonomous surface layer infuses the building with values that nurture the dominant aesthetic and visionary ideals of its era.

Here, a humble rural dwelling – transformed into a significant architectural structure through an acquired “garment” aligned with the prevailing standards of modernism and modernization in late 1930s Athens, still preserves vivid, authentic traces of folk identity and anonymity.
These are clearly expressed in specific details, such as the plasterwork on the ceilings, subtly revealing a distinctive local urban condition marked by a recently rural past.




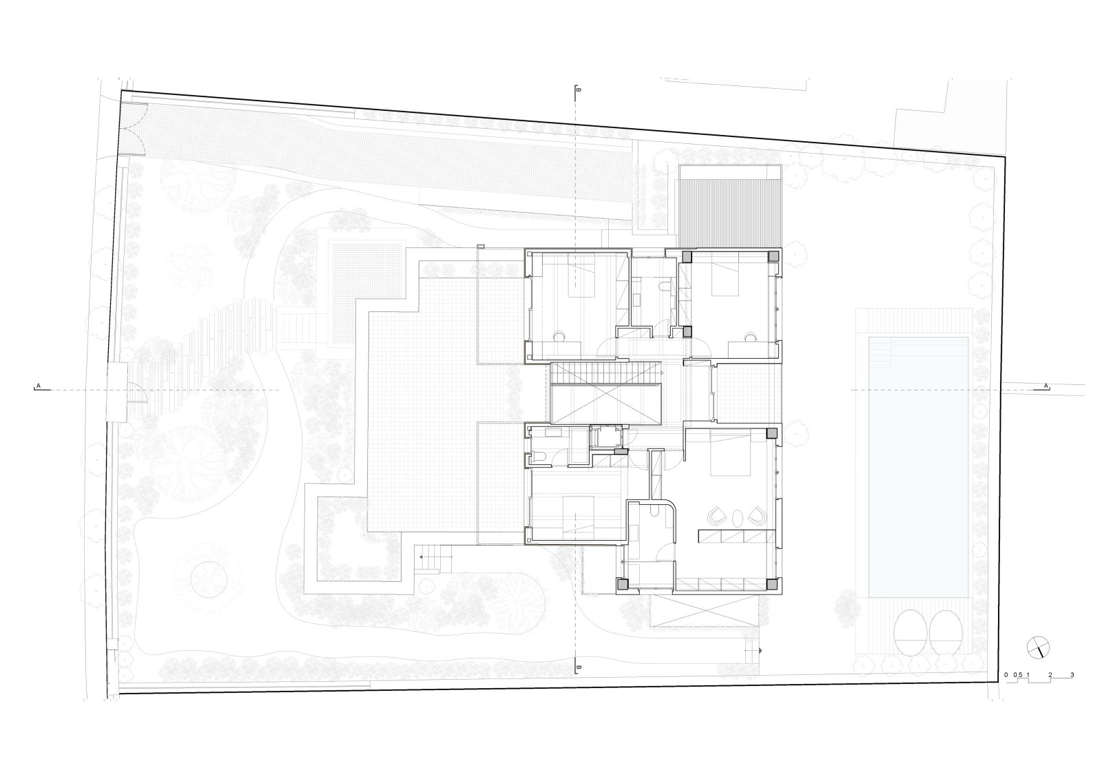
The two-story addition with a basement on the western side, while harmonizing with the preserved structure, allows it to remain autonomous and immediately legible.
It is designed with a contemporary yet timeless modern vocabulary that enters into dialogue with the 1930s building, both in terms of form and ethos of its “handmade” construction.

However, it firmly resists imitation, instead asserting its contemporary compositional and structural identity with intention.
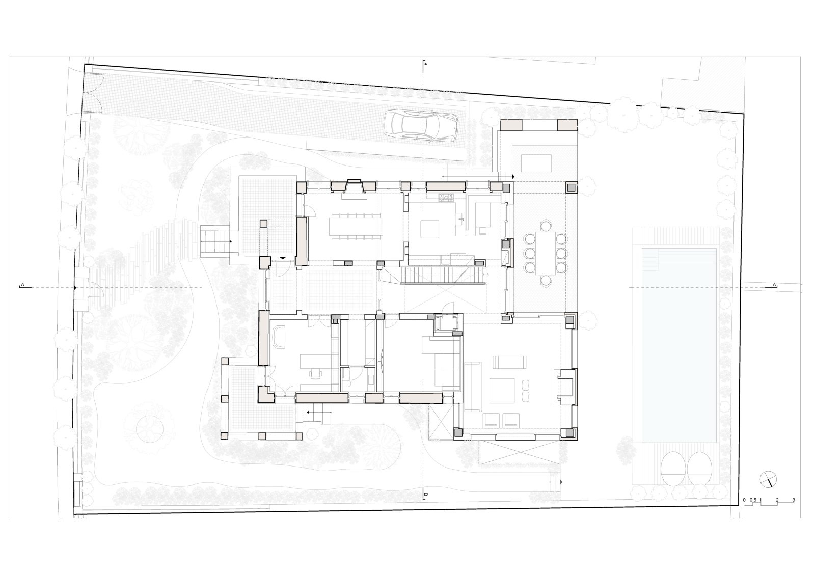
The new unified residence incorporates typological elements from the original structure that carry valuable, enduring values. The strong pre-existing entrance axis, with its characteristic interior arches that ceremoniously receive the visitor and guide them through the various rooms, is preserved and reinforced.

It now extends into a double-height space containing the staircase, which connects the upper floor and the basement. This forms a functional and compositional core that links all areas across the building’s three levels: the “public” ground floor, the “private” upper level, and the new basement housing ancillary spaces, located at the rear of the plot, outside the footprint of the listed building.
The interplay of disparate and contrasting elements, East and West, tradition and modernity, defines both the distinct identity of the listed building and the design spirit of the new architectural ensemble.
This synthesis is completed by the creative dialogue between different expressions of 1930s modernism. The arches of the preexisting building, whether inspired by the Italian Rationalism of the era or by the dominant Neo-Byzantine trend in Greece at the time, converse with the addition’s strictly orthogonal forms, reminiscent of those found in the Bauhaus.
As part of a journey through time, we reused, in the addition, materials from the partial demolition of the old structure, stones and solid ceramic bricks, clearly marking the boundary between the old and the new. Materials and methods that people 85 years ago had carefully concealed in order to express their modernization are brought back into the light, serving as a vital and enduring reference point in the face of the agonizing dilemmas of our present and future.
The supposedly immaterial and timeless fantasy of today’s dominant aesthetic blatantly disregards the assembly of materials, traditional techniques, and any hands-on craft.
The building is perceived as the sculptural product of an oversized divine 3D printer, formed froma single artificial substance and a singular construction gesture. In contrast, inspired by the structural and constructive honesty of modernism, we infused our project with the aura of historical craftsmanship. Thanks to the dedication of the artisan and the creative force of human labor, the precious handmade endures, both literally and metaphorically, evoking a world that, while it may seem like the past, remains the only kind that continues to move us in a meaningful way.
The design of a contemporary, timeless residence, where the styles and materials of yesterday and today coexist harmoniously, was created for specific clients with their active involvement at every stage of the project.
It was based on two fundamental principles: the full exploitation of the possibilities offered by modern science, technology, and technique, and the freedom granted by the living richness of unwritten traditional know-how accumulated over centuries and generations, i.e., craftsmanship.
The implementation of the project relied on a deep focus on every minor construction detail, through a highly detailed architectural design that was specific rather than generic. With a spirit of contemporary simplicity and care, we discreetly integrated and concealed its highly complex modern electromechanical infrastructure.

After persistent and painstaking study, the critical points of connection between handmade craftsmanship and industrial production were fully clarified, and the optimal solutions for each aesthetic and technical issue were selected. A clear sequence of steps was established, where each substructure was patiently prepared to properly receive the one that followed. Subsequently, the base plans, assembled like an orchestra conductor’s score, were followed with religious devotion throughout the entire construction process.
Every desired geometry was locked in place at exactly the right time, allowing the proper assembly of hundreds of specially designed and prefabricated individual components created exclusively for this purpose. This process, from the detailed documentation of the existing structure using the most modern digital tools to its execution, by both skilled experienced hands and modern cnc machinery, where absolutely nothing was left to chance, preserved the original design and ensured a final result differing by only millimeters from it.


This method of design and construction represents an example of high-quality, contemporary, made-to-order industrial construction, like a tailor-made suit.
It clearly demonstrates a modern manufacturing model of creative labor intensity, offering an alternative to the typical mass- produced equivalent.
It shows what can truly be achieved today when the mainstream universal knowledge meets the local historical technical experience, without arrogance and with major devotion. We cared for the listed building with due respect for the years and experience it carries on its back. We left it “space to speak” and stood by it with hard work and dedication, making interventions as quiet and modest as possible, fully meeting the demanding needs of a modern sophisticated family for a home, a final protective shell against the frenetic and disruptive transience of our times.
Facts & Credits
Project title Addition to a listed 1930s residence in Paleo Psychiko
Typology Renovation, Residential
Location Paleo Psychiko, Athens
Architecture study A. Kyranis, K. Stefanidou, B. Deuteraiou, Andreas Kyranis architects
Collaborators G. Chloupis
Project Management/Implementation A. Kyranis, A. Mela, G. Karelas, L. Zelianaios
Photography S. Diamantopoulou
Text provided by the architects
READ ALSO: a25architetti reimagine a family holiday home on Lake Como




















