A Whimsical Reuse: Cove Architectes turned a two-century-old barn in Auvergne into a family house using local materials and artisanal techniques

A Whimsical Reuse explores refined architectural transformations where history is reinterpreted through poetic interventions and contemporary craft. Forgotten spaces gain new life, revealing a dialogue between memory, material, and contemporary ways of living.

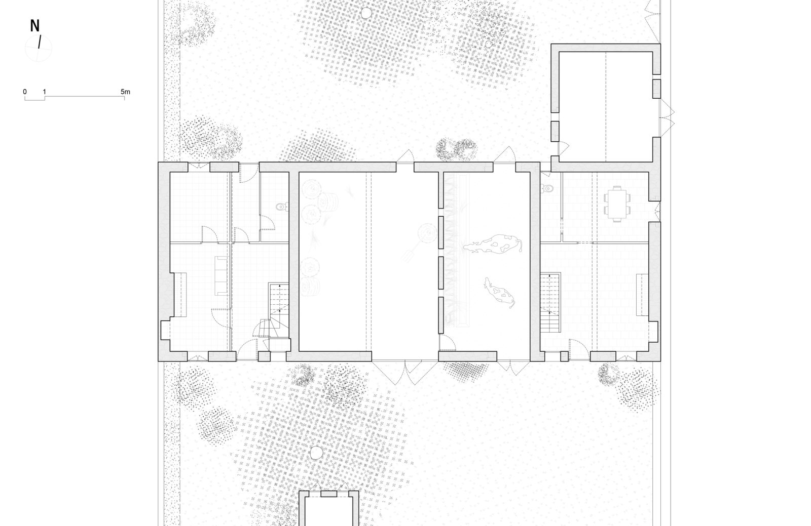
In the hamlet of Chamboirat, within the rural landscape of Auvergne, a two-century-old agricultural barn has been carefully transformed into a family home. Rather than imposing a new architectural language, the project by Cove architectes embraces continuity — of materials, techniques, and spatial character. The intervention unfolds as a dialogue with the existing structure, where preservation becomes an active design tool.

The project concerns the transformation of an ancient farmhouse into a family home in Chamboirat, a small hamlet set within the agricultural landscapes of Auvergne. The existing structure, a two-hundred-year-old barn typical of the region’s rural heritage, revealed the elements that defined its exceptional character: nine-meter-high stone masonry walls, a complex timber framework and generous uninterrupted volumes. 

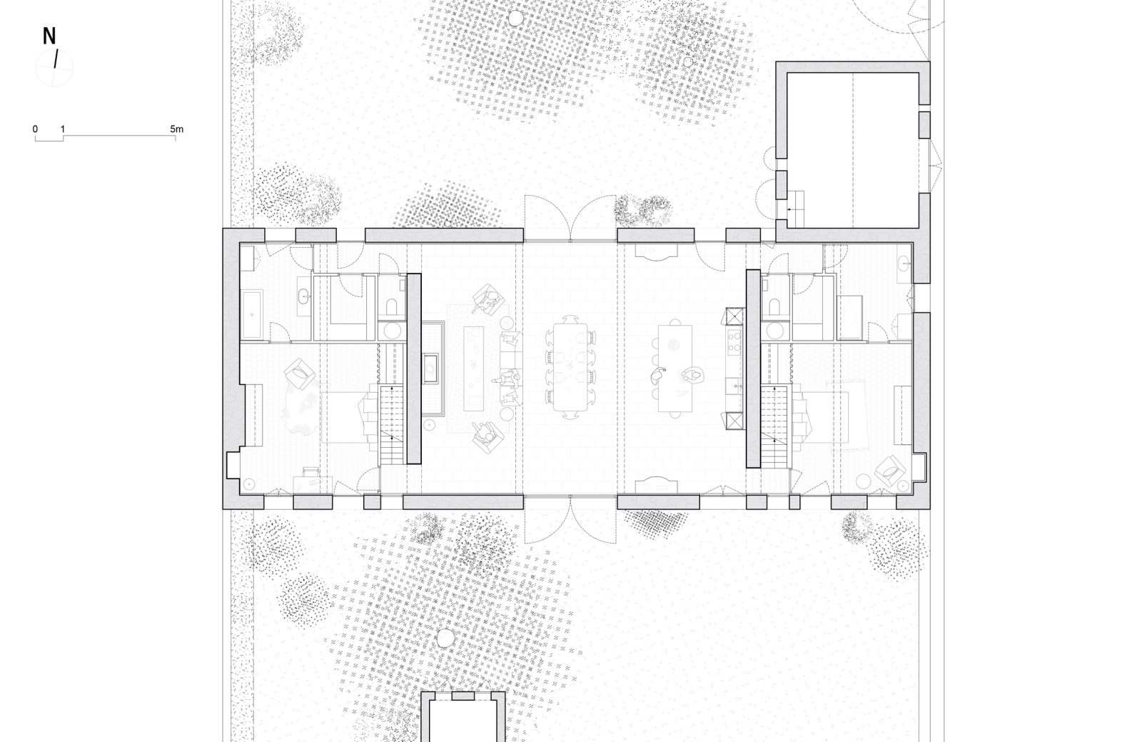
From the outset, the client’s intention to create a home for long-term family gatherings established the conceptual direction of the project. The intervention would not be an act of architectural imposition, but one of continuity.

The guiding principle became the preservation and extension of the building’s built culture, favoring measured actions over formal disruption.

The rehabilitation strategy therefore relied on minimally processed local materials and artisanal techniques, echoing the constructive logic of the original structure.

The stone masonry was stabilized using lime chainings and selective repairs with cut stone, reinforcing structural integrity while maintaining visual coherence. Thermal performance was improved through a breathable insulation layer composed of lime and hemp, finished with a lime–sand render that preserves the tactile and mineral quality of the walls.

The timber framework was carefully restored and supplemented with new oak beams, rafters and planking. These additions were treated to achieve a visual continuity between old and new elements, allowing the intervention to read as a temporal extension rather than a contrast. Craftsmanship here operates not as aesthetic nostalgia, but as a structural and cultural necessity.

Through a series of precise and restrained actions, the project introduces contemporary standards of comfort and durability without compromising the building’s intrinsic nature.

The resulting home does not overwrite the agricultural past of the structure; instead, it allows domestic life to inhabit the existing volumes, material depth and construction intelligence. The transformation becomes less a conversion than a continuation, a careful recalibration that ensures longevity while preserving the spatial and material memory embedded in the barn’s fabric.

Facts & Credits
Project title Chamboirat 
Typology Renovation, Residential 
Location Auvergne, France
Architecture Cove architectes
Year 2023
Photography Charles Bouchaïb
Text provided by the architects 


RELATED ARTICLES